Foundations for the Ages

Specialists in Residential Foundations in Kansas City

  • 40 years of residential foundation experience in South Kansas City

  • In-house structural engineer and drafting services

  • Coordination with inspectors, excavator and other trades for a painless build experience

Gallery

Our Process

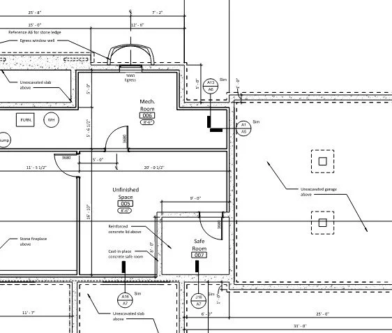
Design

Bring your own blueprints/design or our designers can create one. Our in-house structural engineer will refine as necessary to get the permit

PrarieVillageKansasFoundationDesign

Coordination and Pricing

We coordinate the site and materials and provide an estimate.

Request a Free Estimate

Build

Your concrete foundation is poured to an expert level an ensureing your are ready for rough-in.

Client Reviews

“Mike and Leo were great to work with. Managing subcontractors can be difficult sometimes but these guys saved us time and money vs who I usually go with.”

— Amanda L. Overland Park, Kansas‍ ‍

Room Addition

“Great communication. I will continue to recommend them to everyone I meet for new foundations.”

— Phil K. 

Bonner Springs, KS

Detached Garage

Previous
Previous

Drainage And Foundation Repair

Next
Next

Plumbing